| Adres: | Raambrug 20, 5531 AG Bladel |
| Prijs | € 10.975,- /mnd |
| Type object | Bedrijfshal |
| Perceeloppervlakte | 2.404 m² |
| Totale VVO | 2.636 m² |
| Aanvaarding | Per maandag 1 september 2025 |
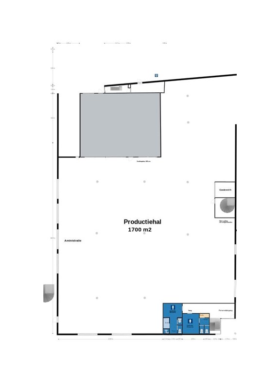
Modern bedrijfspand van 2.636 m² TE HUUR met 164 eigen zonnepanelen! Het pand heeft een moderne en representatieve uitstraling! Het naastgelegen pand Raambrug 22 Bladel is er eventueel bij te huren voor extra (kantoor)ruimte! KENMERKEN Raambrug 20 : ca. 2.636 m² VVO Bouwjaar : 2000 VVO Raambrug 20: Bedrijfsruimte begane grond: circa 1.639 m² Bedrijfsruimte verdieping: circa 846 m² Terras verdieping: circa 25 m² Kantine verdieping: circa 126 m² INDELING: Raambrug 20 Begane grond: personeelsentree met trapopgang en betegelde was- en toiletgroep – bedrijfsruimte (met deels afgeschermde freesruimte) v.v. goederenlift en trap naar verdieping. Verdieping: kantine met keukeninrichting – buitenterras – betegelde toiletgroep – bedrijfsruimte voorzien van wasbak – technische ruimte. BOUWAARD Raambrug 20 is opgetrokken in betonskelet, in traditioneel metselwerk opgetrokken gevels in spouw, platte daken toegepast met bitumen gedekt, de toegepaste materialen zijn van goede kwaliteit. Monolithisch afgewerkte betonvloeren. Vloerverwarming dienend als hoofdverwarming. TECHNISCHE VOORZIENINGEN Twee elektrische overheaddeuren en twee goederenliften aanwezig. Vloerverwarming dienend als hoofdverwarming. Op het dak van Raambrug 20 zijn 164 zonnepanelen geplaatst met een opbrengst van 35.000 tot 40.000 kWh per jaar! ALGEMEEN - Het pand is aangesloten op alle nutsvoorzieningen - Betonnen begane grond en verdiepingsvloer toegepast. - Vloer-, muur- en dakisolatie aanwezig - Er zijn 164 zonnepanelen op het dak van Raambrug 20 aanwezig - Beklinkerd buitenterrein aanwezig met eigen parkeerplaatsen - Voldoende parkeergelegenheid op eigen terrein aan voor- en achterzijde - Bestemmingsplan voorziet in bedrijven tot en met de categorie 3.2 - Bestemmingsplan voorziet in dienstverlening - Op korte afstand gelegen van de autosnelweg A67! HUURCONDITIES - Huurbetaling per maand vooruit - Huurprijs is exclusief energieverbruik, de opbrengst van de 164 zonnepanelen zijn voor huurder! - Huurperiode in overleg - Er wordt geopteerd voor een met BTW belaste verhuur - Als zekerheidstelling wordt een waarborgsom gevraagd ter grootte van 3 maanden huur - Huurcontract conform laatste model ROZ Bij dit modern pand bent u op het juiste adres!
| Referentienummer | 00687 |
| Huurprijs | € 10.975,- per maand |
| Aanvaarding | Per maandag 1 september 2025 |
| Type object | Bedrijfshal |
| Soort bouw | Bestaande bouw |
| Bouwperiode | 2000 |
| Perceeloppervlakte | 2.404 m² |
| VVO | 2.636 m² |
| Ligging | Aan rustige weg Bedrijventerrein In bosrijke omgeving |
| Lokale voorzieningen | Bank op 1000 meter tot 1500 meter Geldautomaat op 1000 meter tot 1500 meter Recreatie binnen 500 meter Restaurant op 1000 meter tot 1500 meter Winkel op 1000 meter tot 1500 meter Supermarkt op 1500 meter tot 2000 meter |
| Bereikbaarheid | Bushalte op 500 meter tot 1000 meter Busknooppunt op 1000 meter tot 1500 meter Afrit van de snelweg op 5000 meter of meer |
| Energielabel | C |
| Energie-index | 1,26 |
| Aantal parkeerplaatsen | 13 |
| Uitrusting | Betonvloer Krachtstroom Overheaddeuren Pantry Toilet |
| Kadastrale aanduiding | Bladel H 1803 |
| Perceeloppervlakte | 1.518 m² |
| Omvang | Geheel perceel |
| Eigendomsituatie | Eigen grond |
| Kadastrale aanduiding | Bladel H 1804 |
| Perceeloppervlakte | 886 m² |
| Omvang | Geheel perceel |
| Eigendomsituatie | Eigen grond |