| Adres: | Rond Deel 12, 5531 AH Bladel |
| Prijs | € 3.470,- /mnd |
| Type object | Bedrijfshal |
| Perceeloppervlakte | 1.000 m² |
| Totale VVO | 969 m² |
| Aanvaarding | Direct |
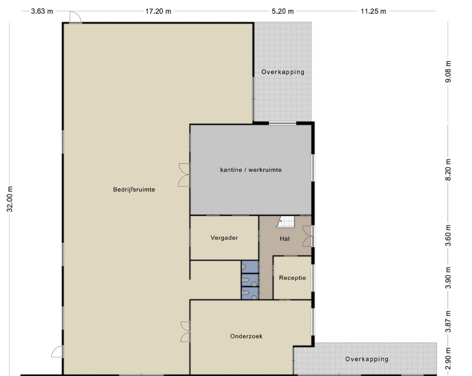
Dit bedrijfsobject met kantoor-, werk- en bedrijfsruimtes biedt veel mogelijkheden zoals productie, research, opslag, service etc. Zeer degelijk en recent gebouwd bestaande uit ca. 420 m² bedrijfsruimte en ca. 420 m² kantoor en werkruimtes. Oppervlaktes VVO: ca. 420 m² bedrijfshal rechts ca. 49 m² overkapping rechts ca. 250 m² kantoor/werkruimte begane grond ca. 170 m² kantoor/werkruimte verdieping ca. 80 m² opslagruimte verdieping Het object is zeer goed geïsoleerd en degelijk gebouwd. In staalconstructie opgetrokken, kantoren in spouw metselwerk gevels. Houten kozijnen met dubbele beglazing. Voorzieningen: Elektrische overheaddeuren. Vloeistofdichte vloeren met vloerverwarming. Volledig LED verlichting. Veel stroomaansluitpunten. Verwarming middels aardwarmte! Optioneel: Er is eventueel extra bedrijfsruimte en extra kantoorruimte erbij te huren op hetzelfde terrein. Bestemmingsplan: Bedrijfsactiviteiten onder de milieu categorieën 1, 2 en 3.1 zijn toegestaan. Huurcondities: - huurbetaling per maand vooruit - huurprijs is exclusief energieverbruik - huurperiode: uitgangspunt is 5 jaar, kortere periode is bespreekbaar - er wordt geopteerd voor een met BTW belaste verhuur - als zekerheidstelling wordt een waarborgsom gevraagd ter grootte van 3 maanden huur - huurcontract conform laatste model ROZ Rond Deel 12 'hallen' Bladel: een pand met heel veel mogelijkheden. Neem gerust contact op om de mogelijkheden te bespreken!
| Referentienummer | 00594 |
| Huurprijs | € 3.470,- per maand |
| Inrichting | Ja |
| Inrichting | Gestoffeerd |
| Aanvaarding | Direct |
| Laatste wijziging | Woensdag 11 september 2024 |
| Type object | Bedrijfshal |
| Soort bouw | Bestaande bouw |
| Bouwperiode | 2013 |
| Perceeloppervlakte | 1.000 m² |
| VVO | 549 m² |
| Kantoor oppervlakte | 420 m² |
| Totale verhuurbare vloeroppervlakte | 969 m² |
| Vrije hoogte | 6 m. |
| Draagvermogen | 1.500 kg/m² |
| Ligging | Aan rustige weg Bedrijventerrein Nabij snelweg |
| Lokale voorzieningen | Bank op 1000 meter tot 1500 meter Geldautomaat op 1000 meter tot 1500 meter Recreatie op 1000 meter tot 1500 meter Restaurant op 1000 meter tot 1500 meter Winkel op 1000 meter tot 1500 meter Supermarkt op 1500 meter tot 2000 meter |
| Bereikbaarheid | Bushalte op 500 meter tot 1000 meter Busknooppunt op 1000 meter tot 1500 meter Afrit van de snelweg op 5000 meter of meer |
| Aantal parkeerplaatsen | 10 |
| Uitrusting | Betonvloer Krachtstroom Overheaddeuren Toilet |
| Heeft een kantoor | Ja |
| Kadastrale aanduiding | Bladel H 1868 |
| Perceeloppervlakte | 1.000 m² |
| Omvang | Deel perceel |
| Eigendomsituatie | Eigen grond |