| Adres: | Poppelsedijk 5, 5095 AJ Hooge Mierde |
| Prijs | Prijs op aanvraag |
| Type object | Bedrijfshal |
| Perceeloppervlakte | 1.783 m² |
| Totale VVO | 1.748 m² |
| Aanvaarding | In overleg |
| Status | Nieuw in verhuur |
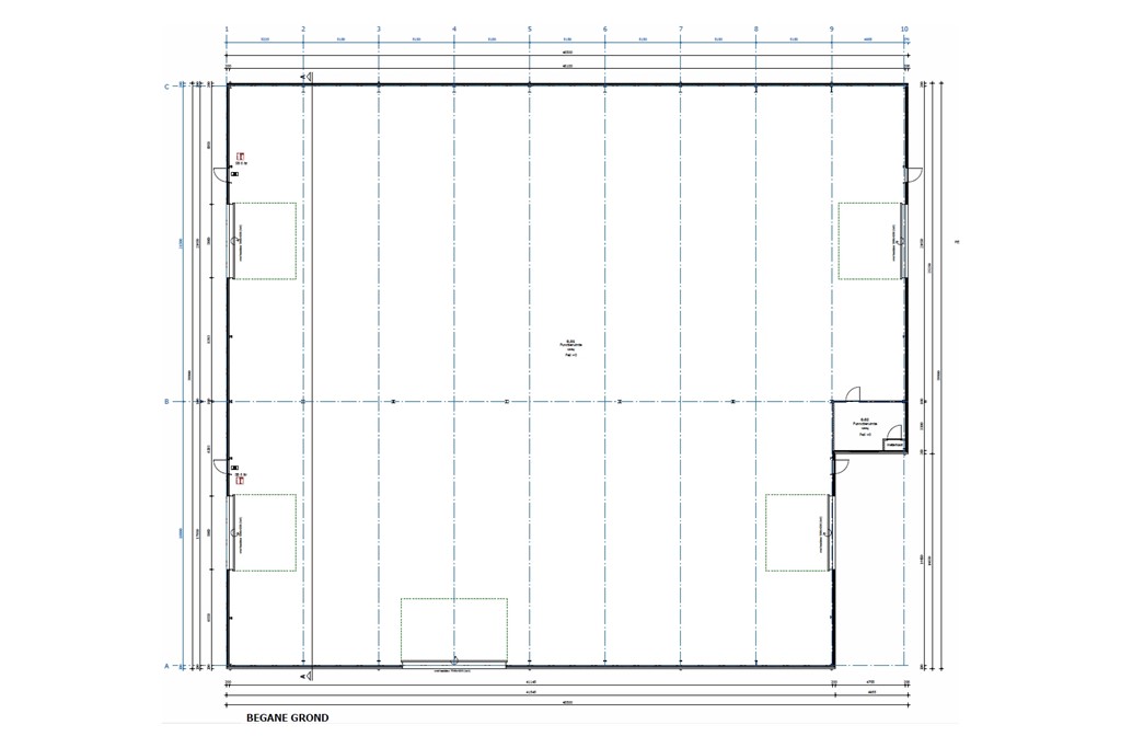
Perfect geïsoleerde nieuwbouw opslaghal te huur van ca 1750 m2! Perfect voor opslag, eventueel met kleine werkruimte. Vanwege de goede isolatie is het altijd comfortabel. Gelegen op goed bereikbare locatie en er is volop manoeuvreerruimte rondom de hal. Direct beschikbaar!! Bestemmingsplan geeft aan dat is toegestaan 1.000 m2 statische opslag, 500 m2 verhuur van opslag- en bedrijfsruimte en overig ten behoeve van nevenactiviteit akkerbouw . Opleveringsniveau: - er zijn 5 overheaddeuren aanwezig - betonvloer - vrije hoogte zijkant circa 5,0 m, nokhoogte circa 9 m - vrije overspanning van 17,95m (links) en 21,45 m (rechts) - super goed geïsoleerde opslaghal - kracht- en netstroom aanwezig Huurcondities: - Huurbetaling per maand vooruit - Huurperiode minimaal 2 jaar - Er wordt geopteerd voor een met BTW belaste verhuur - Als zekerheidstelling wordt waarborgsom gevraagd ter grootte van 3 maanden huur exclusief BTW - Huurcontract conform laatste model ROZ - Voorbehoud goedkeuring opdrachtgever
| Referentienummer | 00754 |
| Prijs | Prijs op aanvraag |
| Inrichting | Niet gestoffeerd |
| Inrichting | Niet gemeubileerd |
| Status | Nieuw in verhuur |
| Aanvaarding | In overleg |
| Type object | Bedrijfshal |
| Soort bouw | Bestaande bouw |
| Bouwperiode | 2026 |
| Perceeloppervlakte | 1.783 m² |
| VVO | 1.748 m² |
| Vrije hoogte | 5 m. |
| Ligging | Buiten bebouwde kom |
| Lokale voorzieningen | Bank op 5000 meter of meer Geldautomaat op 1500 meter tot 2000 meter Recreatie op 1000 meter tot 1500 meter Restaurant op 1500 meter tot 2000 meter Winkel op 1500 meter tot 2000 meter Supermarkt op 5000 meter of meer |
| Bereikbaarheid | Bushalte binnen 500 meter Busknooppunt op 5000 meter of meer Afrit van de snelweg op 5000 meter of meer |
| Uitrusting | Betonvloer Krachtstroom Lichtstraten Overheaddeuren |
| Kadastrale aanduiding | Reusel G 1405 |
| Perceeloppervlakte | 1.783 m² |
| Omvang | Deel perceel |
| Eigendomsituatie | Eigen grond |