| Adres: | Raambrug 20-0, 5531 AG Bladel |
| Prijs | € 2.050.000,- k.k. |
| Type object | Bedrijfshal |
| Perceeloppervlakte | 2.404 m² |
| Totale VVO | 2.636 m² |
| Aanvaarding | In overleg |
| Status | Nieuw in verkoop |
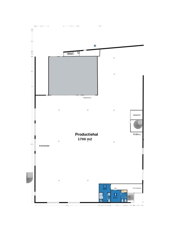
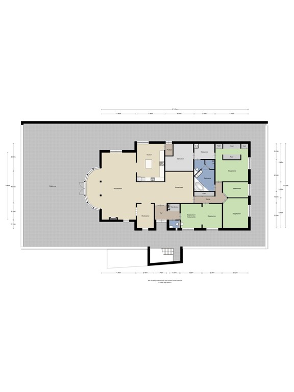
Modern bedrijfspand met luxe woon-appartement aan de Raambrug 20 (bedrijfspand) en Berschotten 13 (bedrijfswoning) BLADEL! Het geheel is in 2000 zeer degelijk gebouwd van de beste materialen. Het pand kent een moderne en representatieve uitstraling! KENMERKEN Raambrug 20 : ca. 2.636 m² VVO Berschotten 13 woning : ca. 225 m² GO plus ca. 12 m² berging b.gr. Bouwjaar : 2000 Perceeloppervlak : 2.404 m² Aanvaarding : kan op korte termijn VVO Raambrug 20: Bedrijfsruimte begane grond: circa 1.639 m² Bedrijfsruimte verdieping: circa 846 m² Terras verdieping: circa 25 m² Kantine verdieping: circa 126 m² INDELING: BEDRIJFSPAND Raambrug 20 Begane grond: personeelsentree met trapopgang en betegelde was- en toiletgroep – bedrijfsruimte (met deels afgeschermde freesruimte) v.v. goederenlift en trap naar verdieping. Verdieping: kantine met keukeninrichting – buitenterras – betegelde toiletgroep – bedrijfsruimte voorzien van wasbak – technische ruimte. WOON-APPARTEMENT Het appartement Berschotten 13 is verhuurd. Bij serieuze interesse kunnen de huurgegevens worden overlegd. Begane grond: portaal met trapopgang – aparte berging. 1e verdieping: hal met garderobe en halfhoog betegeld toilet met fonteintje – werkkamer – gang met vaste kastenwand en meterkast (11 groepen + krachtgroep) – 4 slaapkamers waarvan ouderslaapkamer met inloopgarderobe (thans zijn twee slaapkamers bij elkaar getrokken) – volledig betegelde wasruimte v.v. aansluiting was- en droogautomaat met opstelling “Nefit” HR combi ketel en opstelling afzuigunit centraal stofzuigersysteem – bijkeuken / bergkamer – luxe badkamer v.v. whirlpool ligbad, douchecabine, toilet en dubbele wastafel – woonkamer met speelhoek, half open kantoor, zithoek met open haard en serre – woon keuken met luxe inbouwkeuken v.v. granieten blad, inductiekookplaat, afzuigkap, vaatwasser, magnetron, oven en koelkast – achterportaal. Groot dakterras aanwezig! BOUWAARD Raambrug 20 is opgetrokken in betonskelet, in traditioneel metselwerk opgetrokken gevels in spouw, platte daken toegepast met bitumen gedekt, de toegepaste materialen zijn van goede kwaliteit. Monolithisch afgewerkte betonvloeren. Vloerverwarming dienend als hoofdverwarming. Berschotten 13 is traditioneel gebouwd, opgetrokken in spouw metselwerk, plat getoerd dak met bitumen gedekt. TECHNISCHE VOORZIENINGEN Elektrische overheaddeuren en goederenlift aanwezig. Verwarming Raamburg 20 betreft vloerverwarming dienend als hoofdverwarming. Op het dak van Raambrug 20 zijn 164 zonnepanelen geplaatst met een opbrengst van 35.000 tot 40.000 kWh per jaar! ALGEMEEN - Het pand is aangesloten op alle nutsvoorzieningen - Betonnen begane grond en verdiepingsvloer toegepast. - Vloer-, muur- en dakisolatie aanwezig - Er zijn 164 zonnepanelen op het dak van Raambrug 20 aanwezig - Beklinkerd buitenterrein aanwezig - Voldoende parkeergelegenheid op eigen terrein aan voor- en achterzijde - Bestemmingsplan voorziet in bedrijven tot en met de categorie 3.2 - Bestemmingsplan voorziet in dienstverlening - Luxe en riante bedrijfswoning op de verdieping met groot dakterras - Raambrug 20 en Berschotten 13 zijn eventueel later afzonderlijk verkoopbaar - Op korte afstand gelegen van de autosnelweg A67!
| Referentienummer | 00733 |
| Vraagprijs | € 2.050.000,- k.k. |
| Inrichting | Ja |
| Inrichting | Gestoffeerd |
| Status | Nieuw in verkoop |
| Aanvaarding | In overleg |
| Type object | Bedrijfshal |
| Soort bouw | Bestaande bouw |
| Bouwperiode | 2000 |
| Perceeloppervlakte | 2.404 m² |
| VVO | 2.636 m² |
| Ligging | Aan rustige weg Bedrijventerrein In bosrijke omgeving |
| Lokale voorzieningen | Bank op 1000 meter tot 1500 meter Geldautomaat op 1000 meter tot 1500 meter Recreatie binnen 500 meter Restaurant op 1000 meter tot 1500 meter Winkel op 1000 meter tot 1500 meter Supermarkt op 1500 meter tot 2000 meter |
| Bereikbaarheid | Bushalte op 500 meter tot 1000 meter Busknooppunt op 1000 meter tot 1500 meter Afrit van de snelweg op 5000 meter of meer |
| Energielabel | C |
| Energie-index | 1,26 |
| Aantal parkeerplaatsen | 13 |
| Uitrusting | Betonvloer Krachtstroom Overheaddeuren Pantry Toilet |
| Kadastrale aanduiding | Bladel H 1804 |
| Perceeloppervlakte | 886 m² |
| Omvang | Geheel perceel |
| Eigendomsituatie | Eigen grond |
| Kadastrale aanduiding | Bladel H 1803 |
| Perceeloppervlakte | 1.518 m² |
| Omvang | Geheel perceel |
| Eigendomsituatie | Eigen grond |