Beschrijving
Noteer de kijkdagen en loop zonder afspraak binnen:
Zaterdag 21 maart 2026: 11.00u – 13.00u
Donderdag 26 maart 2026: 15.00u – 17.00u
MAANDAG 30 maart 2026: 12.00u SLUITING BIEDINGEN
Gunning onder voorbehoud goedkeuring opdrachtgever!
Alle informatie en biedingsformulier is te vinden in de online brochure:
hofstad21.nl
> Knop ‘Documentatie’: inloggen met je email in de dataroom waar alle stukken te vinden zijn.
> Knop ‘Breng een bod uit’: het biedingsformulier invullen.
TE KOOP
Woning op prachtig hoekperceel van 376 m² met vrijstaande garage en vrij uitzicht!
Op een mooie en vrije locatie in Bladel staat deze woning op een royaal hoekperceel met vrijstaande garage/berging. Dankzij de hoekligging geniet u hier van extra privacy, veel lichtinval en een heerlijk vrij uitzicht op groen.
De woning biedt volop mogelijkheden voor kopers die hun eigen woonwensen willen realiseren. Modernisering en verbeteringen zijn zeer lonend en maken dit een uitstekende kans om hier uw droomhuis te creëren op een toplocatie.
De ligging is ideaal: op korte afstand van het centrum van Bladel met winkels, horeca en diverse voorzieningen. Daarnaast bevinden zowel basisscholen als voortgezet onderwijs zich in de directe omgeving - perfect voor gezinnen.
Pluspunten op een rij:
- Gelegen op een prachtig hoekperceel
- Vrijstaande garage/berging
- Vrije ligging met uitzicht op groen
- Veel privacy en lichtinval
- Centrum op korte afstand
- Basisscholen en voortgezet onderwijs nabij
- Uitstekende mogelijkheid om naar eigen smaak te moderniseren
Bent u op zoek naar een woning met potentie, ruimte en een fijne ligging? Dan is Hofstad 21 absoluut een bezichtiging waard!
Indeling
Begane grond:
Royale hal met garderobe en meterkast voorzien van 4 groepen, 1 aardlekschakelaar en glasvezelaansluiting; 3/4e betegelde doucheruimte met wastafel en inloopdouche; halfhoog betegelde toiletruimte en 3-traps verdiepte kelderkast.
Fraaie L-vormige woonkamer met veel lichtinval en de woonkamer biedt meer dan voldoende ruimte aan een eet- en zithoek. Gezellige woonkamer met centraal opgestelde open haard in gemetselde schouw, veel lichtinval en mooi uitzicht aan twee zijden!
Gesloten keuken met inbouwkeuken met keukenmeubel en fornuis met 4 pits gaskookplaat, oven en afzuigkap. Vanuit de keuken is het genieten van het uitzicht op de royale tuin.
Bijkeuken met aansluitingen wasapparatuur en deur naar de achtertuin. De bijkeuken is royaal van opzet waardoor er diverse bergkasten geplaatst kunnen worden.
De begane grond is netjes afgewerkt met tegelvloeren en laminaatvloer in het voorste deel van de woonkamer. Met uitzondering van de bijkeuken zijn alle wanden bezet in stucwerk en deels betegeld zoals hiervoor omschreven. De plafonds in de hal en woonkamer zijn ook bezet in stucwerk. Aluminium kozijnen met dubbele beglazing, de voorruit van de woonkamer is vernieuwd in 2009 en de ruit van de keuken is recent vernieuwd.
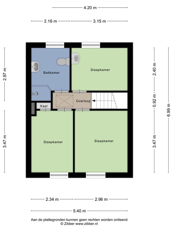
Verdieping:
Overloop met 3 fraaie slaapkamers en ruime badkamer.
De slaapkamer linksvoor is uitgevoerd met een vaste inbouwkast en de slaapkamer achterzijde is uitgevoerd met een wastafel. De slaapkamers aan de voorzijde zijn uitgevoerd met laminaatvloer en de achterste slaapkamer is voorzien van vloerbedekking, de wanden zijn bezet met stucwerk en grotendeels afgewerkt met behang.
Royale volledig betegelde badkamer voorzien van douchecabine, wastafel en toilet.
De verdieping is uitgevoerd met aluminium kozijnen en de slaapkamers zijn voorzien van horren.
Zolder:
Vlizotrap naar royale zolderverdieping met opstelling Nefit Ecomline HR combi ketel.
Buiten:
Leuke voor- en zijtuin die de hoek locatie mooi markeert, de voordeur is in de zijgevel gesitueerd.
Riante achtertuin die volop privacy en volop uitbreidingsmogelijkheden biedt. Er is een bron aanwezig voor tuinberegening.
Oprit naar riante garage/berging van ruim 35 m², voorzien van elektra en verlichting.
De achtertuin is ongeveer 16 meter diep, 12,5 meter breed en ideaal georiënteerd op het zuidwesten. Het achterdakvlak van de woning is ideaal georiënteerd voor het eventueel plaatsen van zonnepanelen. Riante achtertuin die volop privacy en volop uitbreidingsmogelijkheden biedt.
Wonen in Bladel:
Bladel is een dorp tussen de bossen en de heide met een voorzieningenniveau dat zich kan meten met een stad en op slechts zo'n 25 km van Eindhoven. ASML, High Tech Campus en het Maxima Medisch Centrum zijn 20-25 autominuten.
Tenslotte:
Koper dient een waarborgsom te storten of een bankgarantie te deponeren, groot 10% van de koopsom. Genoemde maten zijn indicatief. De gegevens die u hierbij ontvangt zijn met de grootst mogelijke zorgvuldigheid samengesteld, er kunnen geen rechten aan worden ontleend. Voor meer info of een bezichtiging kunt u contact opnemen met ons kantoor.
Plattegronden
182164714_1626447_hofst_begane_grond_first_design_20260211_5a9515.jpg
182164714_1626447_hofst_eerste_verdiepi_first_design_20260211_315b93.jpg
182164714_1626447_hofst_zolder_first_design_20260211_bee358.jpg
182164714_1626447_hofst_berging_first_design_20260211_4a4564.jpg