Beschrijving
Deze royale woning met o.a. 4 slaapkamers, 2 badkamers en garage wacht op jou om deze woning weer naar eigen wens te moderniseren! Deze woning met garage ligt op een prachtig perceel van 567 m² in het dorpscentrum van Casteren op loopafstand van de basisschool. De woning is praktisch ingedeeld met o.a. een doorzon woonkamer en gesloten keuken op de begane grond. Op de eerste verdieping tref je de badkamer en 3 slaapkamers. Vaste trap naar een royale tweede verdieping waar je 2e badkamer en de 4e slaapkamer met dakkapel aantreft. De ruim 40 meter diepe en volledig privacy biedende achtertuin op het zuidwesten maakt het plaatje compleet!
Alle informatie incl. data-room en biedingsformulier is te vinden op:
willibrordusstraat15.nl
Indeling:
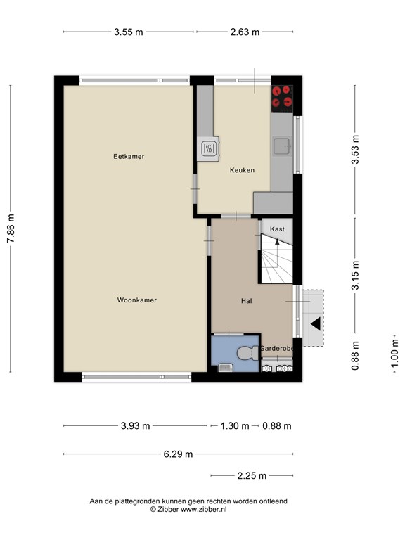
Begane grond: Hal met trap naar de eerste verdieping, garderobe en meterkast. Volledig betegelde toiletruimte van 1997 met toilet en fontein.
De gesloten keuken is 3/4e hoog betegeld en uitgevoerd met een maatwerk inbouwkeuken voorzien van 1,5 rvs spoelbak, keramische kookplaat, afzuigkap, koelkast en magnetron. Achterdeur is afsluitbaar met een elektrisch rolluik.
Woonkamer die meer dan voldoende ruimte biedt aan een eet- en zithoek. Voor- en achterzijde voorzien van elektrisch bedienbaar rolluik. Vanuit de woonkamer is fraai uitzicht op de ruim 40 meter diepe achtertuin.
De begane grond is netjes afgewerkt met tegelvloeren in de hal en keuken. De woonkamer is afgewerkt met een warme kurkvloer. De wanden zijn uitgevoerd in ruw stucwerk en glad gestuukte plafonds.
Eerste verdieping: Overloop met drie fraaie slaapkamers allen uitgevoerd met kurkvloeren, stucwerk wanden en glad gestuukte plafonds. De ouderslaapkamer aan de achterzijde is uitgevoerd met een vaste schuifwandkast. In de kleinste slaapkamer is een infrarood sauna opgesteld. De 3 slaapkamers zijn uitgevoerd met elektrisch bedienbare rolluiken en de ouderslaapkamer is tevens voorzien van een screen.
Volledig betegelde badkamer van 1997 voorzien van inloopdouche, toilet, designradiator en wastafel met planchet, spiegel en verlichting.
Tweede verdieping: Vaste trap naar overloop. Zeer royale 4e slaapkamer voorzien van 3 meter brede dakkapel geplaatst in 1998. De overloop en 4e slaapkamer zijn voorzien van kurkvloeren, stucwerkwanden en fraai betimmerde plafonds. Er is volop bergruimte
Betegelde 2e badkamer van 1997 voorzien van Velux dakvenster, douchecabine en wastafel met planchet, spiegel en verlichting. Vaste kast met opstelling combi ketel Remeha Avanta 35C CW5 van 2019.
Tuin:
Eigen oprit die plaats biedt aan meerdere auto’s.
Vrijstaande garage voorzien van elektra, verlichting en vliering.
Aan de woning is een ruim terras gesitueerd met zonnescherm achterzijde woning. Fraaie ruim 40 meter diepe achtertuin. De achtertuin biedt volledig privacy, is ideaal op het zuidwesten gesitueerd en biedt veel mogelijkheden!
Wonen in Casteren:
Bladel is een gezellig dorp met voldoende voorzieningen zoals een basisschool, kinderopvang, gemeenschapshuis en horecagelegenheden. ASML, High Tech Campus en het Maxima Medisch Centrum zijn 20-25 autominuten.
Tenslotte:
De gegevens die u hierbij ontvangt zijn met de grootst mogelijke zorgvuldigheid samengesteld, er kunnen geen rechten aan worden ontleend. Genoemde maten zijn indicatief. Koper dient na aankoop een waarborgsom te storten of een bankgarantie te deponeren, groot 10% van de koopsom.
Interesse?
Met plezier laten we deze woning zien, neem contact op voor een bezichtiging!
Plattegronden
476274_2D_Begane_Grond_Willibrordusstraat_15_Casteren_01.jpg
476274_2D_Eerste_Verdieping_Willibrordusstraat_15_Casteren_02.jpg
476274_2D_Tweede_Verdieping_Willibrordusstraat_15_Casteren_03.jpg
476274_2D_Garage_Willibrordusstraat_15_Casteren_04.jpg