Beschrijving
Prachtige kempische woonboerderij van het type 2-onder-1-kap met fraai afsluitbaar overdekt terras, prachtige achtertuin en vrijstaand guesthouse. Dit oorspronkelijk deel van de boerderij is in 1990 verbouwd tot woonboerderij, de boerderijsfeer is onmiskenbaar aanwezig, je voelt je hier direct thuis!
Alle informatie en biedingsformulier is te vinden in de online brochure:
oranjestraat40c.nl
Knop ‘Documentatie’: hier kun je inloggen met je eigen email in de dataroom waar alle relevante stukken te vinden zijn.
Knop ‘Breng een bod uit’: hier kun je het biedingsformulier invullen.
Highlights van deze woning:
- Prachtige boerderij van 1947, tot woonboerderij verbouwd in 1990.
- Badkamer is van circa 2011 en de keuken is van circa 2012.
- Vloer-, muur- en dakisolatie aanwezig.
- Vier slaapkamers – ideaal voor gezinnen of werken vanuit huis
- Riant perceel van 585 m² met optimale privacy
- Een woonboerderij met sfeer en karakter
- Keurige afwerking
Indeling:
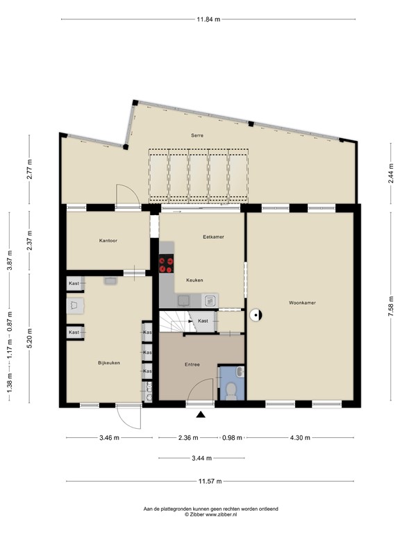
Begane grond: Hal – volledig betegelde toiletruimte met hangcloset en fontein – gesloten keuken met inbouwkeuken (circa 2012) voorzien van inductie kookplaat, afzuigkap, koelkast, combi magnetron en vaatwasser – woonkamer – kantoor – bijkeuken met aansluitingen wasapparatuur, meterkast voorzien van 9 groepen, 2 krachtgroepen en 2 aardlekschakelaars en kastenwand voorzien van koelkast en stortbak.
Verdieping: Overloop – ouderslaapkamer met dakkapel – slaapkamer 2 met dakkapel – slaapkamer 3 met dakkapel en wastafel – bergkamer – volledig betegelde badkamer (circa 2011) voorzien van whirlpool ligbad, inloopdouche, hangcloset en badkamermeubel met wastafel.
Zolder: Vanuit slaapkamer 3 vaste trap naar zolder met opstelling Remeha Quinta 35c combi ketel van 2008.
Overdekt terras afsluitbaar met glazen schuifwanden. Tuinhuis (guesthouse) geïsoleerd en voorzien van krachtstroom, water, toilet, keukenblok, geiser en gasgevelkachel(s).
Wonen in Oost-, West- en Middelbeers: het beste van Brabant
In de Beerzen woon je midden in het groen, omgeven door bossen, heide en landerijen, met de stad altijd dichtbij. De dorpen ademen rust, ruimte en een sterk gemeenschapsgevoel. Je vindt er levendige verenigingen, tradities en jaarlijkse feesten die zorgen voor verbondenheid. Basisvoorzieningen zijn binnen handbereik, terwijl Eindhoven en Tilburg snel bereikbaar zijn. Zo combineer je het beste van twee werelden: gemoedelijk dorps wonen met alle gemakken van de stad om de hoek.
Tenslotte:
Koper dient een waarborgsom te storten of een bankgarantie te deponeren, groot 10% van de koopsom. Genoemde maten zijn indicatief. De gegevens die u hierbij ontvangt zijn met de grootst mogelijke zorgvuldigheid samengesteld, er kunnen geen rechten aan worden ontleend. Voor meer info of een bezichtiging kunt u contact opnemen met ons kantoor.
Plattegronden
174876334_1566168_oranj_begane_grond_first_design_20250925_788b6f.jpg
174876334_1566168_oranj_eerste_verdiepi_first_design_20250925_2466b6.jpg
174876334_1566168_oranj_tweede_verdiepi_first_design_20250925_5686ad.jpg
174876334_1566168_oranj_tuinhuis_first_design_20250925_f643f1.jpg