Beschrijving

Noteer de kijkdagen en loop zonder afspraak binnen:
Woensdag 22 oktober 2025: 15.00u – 17.00u 
Zaterdag 25 oktober 2025: 11.00u – 13.00u
VRIJDAG 31 oktober 2025: 12.00u SLUITING BIEDINGEN

Alle informatie en biedingsformulier is te vinden in de online brochure: 
Lensheuvel1h.nl
Knop ‘Documentatie’: hier kun je inloggen met je eigen email in de dataroom waar alle relevante stukken te vinden zijn.
Knop ‘Breng een bod uit’: hier kun je het biedingsformulier invullen. 


TE KOOP

Hartelijk welkom bij Lensheuvel 1H in Reusel – een unieke kans! 

Op zoek naar ruimte, comfort én de gezelligheid van het centrum binnen handbereik? Dit royale hoekappartement (type maisonnette) op de 1e en 2e verdieping biedt het allemaal.

- Twee zonnige balkons om te genieten van het buitenleven
- Twee ruime slaapkamers – ideaal voor gezin, thuiswerkplek of logees
- Eigen berging en een ruime parkeerplaats
- Gelegen in het centrum van Reusel – winkels, horeca en voorzieningen op loopafstand

Met zijn royale indeling, lichte leefruimtes en praktische extra’s is dit appartement dé perfecte combinatie van comfortabel wonen en een levendige omgeving.


Gezamenlijk:
De entreehal kan middels een intercominstallatie vanuit het appartement geopend worden en is voorzien van bellentableau en brievenbussen. Centrale hal met meterkasten en trapopgang met toegang tot brede galerij naar de appartementen in het complex. Vanuit hier is tevens het buitenterrein met de parkeerplaatsen en de berging te bereiken.

Eigen fietsenberging voorzien van elektra. Parkeren kan op het eigen terrein van de VVE.


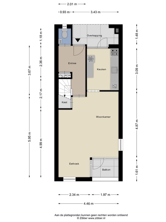
Indeling appartement:

Eerste verdieping
Overdekt terras aan de achterzijde – een heerlijke plek voor een kop koffie in de ochtendzon. Vanwege de hoek-locatie zijn er geen passanten en is de privacy optimaal!

Bij binnenkomst in ruime hal vind je de eigen meterkast en de deels betegelde toiletruimte met staand toilet en fontein. Trapopgang naar tweede woonlaag. Royale woonkamer met handige provisiekast en toegang tot de loggia aan de voorzijde – een heerlijke plek om te genieten van de avondzon. Er is sprake van extra lichtinval in de woonkamer vanwege het zijraam!

De separate keuken is praktisch én gezellig, deels betegelde wanden en een complete wandopstelling voorzien van gaskookplaat, afzuigkap, oven en vaatwasser. Vanuit de keuken bereik je ook het overdekt terras aan de achterzijde.

Tweede verdieping
Via de overloop, met vloerbedekking, bereik je de c.v.-ruimte met een combiketel (circa 2012). De bovenverdieping verrast met twee ruime slaapkamers.

De royale hoofdslaapkamer aan de voorzijde beschikt over een dakkapel en veel lichtinval. De tweede slaapkamer aan de achterzijde is eveneens keurig afgewerkt en voorzien van een Velux-dakraam en een praktische schuifkastenwand.

De badkamer is grotendeels betegeld en compleet uitgerust met een wastafelmeubel, douche met spatscherm, tweede toilet en een aansluiting wasmachine.

Highlights:
- Leuk en fris hoekappartement met extra lichtinval.
- Dak-, spouwmuur- en vloerisolatie aanwezig.
- Hardhouten kozijnen met dubbele beglazing.
- Verwarming en warmwater middels een Nefit HR combiketel.
- De servicekosten bedragen voor dit appartement € 191,76 per maand (in 2025), inbegrepen o.a. kosten voor opstal- en brandverzekering, klein onderhoud, reservering groot onderhoud en schoonmaakkosten.
- Definitief energielabel B aanwezig!
- Het gehele appartement is keurig afgewerkt met laminaatvloeren op beide verdiepingen.
- Lichte wanden en plafonds waardoor het appartement licht en fris aanvoelt.
- Gelegen op de hoek Wilhelminalaan/Lensheuvel boven winkels, kantoren en tandartspraktijk. Op loopafstand van de Markt met winkels en supermarkten. Het complex is goed bereikbaar en biedt bovendien parkeerruimte op eigen terrein van de VVE aan de achterzijde van het complex.


Wonen in Reusel:
Reusel- De Mierden is een door en door Kempische gemeente in een door en door Brabants landschap, gelegen aan de rand van Nederland. Reusel-De Mierden behoort tot de dunst bevolkte gebieden van Nederland. Met alle voordelen van dien: veel rust, veel ruimte en veel natuurschoon.

Reusel- De Mierden is dan ook voor alles een groene gemeente. In het buitengebied bevinden zich enkele mooie natuurgebieden, die worden beheerd door Staatsbosbeheer, Brabants Landschap en de vereniging Natuurmonumenten. In en nabij Lage en Hooge Mierde, bevindt zich Landgoed De Utrecht. 

Maar Reusel- De Mierden biedt veel meer. Tal van bezienswaardigheden en evenementen zijn een bezoek meer dan waard. Ook op sportief gebied kunt u zich helemaal uitleven. Bent u vervolgens toe aan een paar uurtjes ontspanning, dan hoeft u echt het dorp niet uit. Tientallen horecaondernemers staan gastvrij voor u klaar, met een gevarieerd aanbod. Dat kan een fris pilsje op een gezellig terras zijn, maar ook een tot in de puntjes verzorgd diner in een sfeervol restaurant. Of een avondje stappen in de disco.

Elke dorpskern in de gemeente Reusel- De Mierden heeft minimaal één eigen basisschool.
In Reusel treft u bovendien een gevarieerd winkelaanbod.

Kortom: Reusel- De Mierden hééft het als het gaat om toerisme en recreatie. Daar komt nog bij dat het een ideale springplank is naar België - een land zo dichtbij, maar toch zo anders.


Tenslotte:
De gegevens die u hierbij ontvangt zijn met de grootst mogelijke zorgvuldigheid samengesteld, er kunnen geen rechten aan worden ontleend. Genoemde maten zijn indicatief. Koper dient na aankoop een waarborgsom te storten of een bankgarantie te deponeren, groot 10% van de koopsom. Het aanbod betreft een voormalige huurwoning waardoor in de koopovereenkomst een niet-zelfbewoningsclausule wordt opgenomen.

Kenmerken