29-1.jpg 30 32 31 33 34
Verhuurd

Verhuurd: Bedrijfshal perfect gelegen aan rondweg Bladel!

€ 1.750,- /mnd
Adres: Postelweg 35, 5531 MV Bladel
Type object Bedrijfshal
Perceeloppervlakte 700 m²
Totale VVO 440 m²
Aanvaarding Per donderdag 1 januari 2026
Status Verhuurd

Notitie

Algemeen

Mooi vrij gelegen multifunctionele bedrijfshal, goed bereikbaar en perfect gelegen aan rondweg Bladel!

INDELING
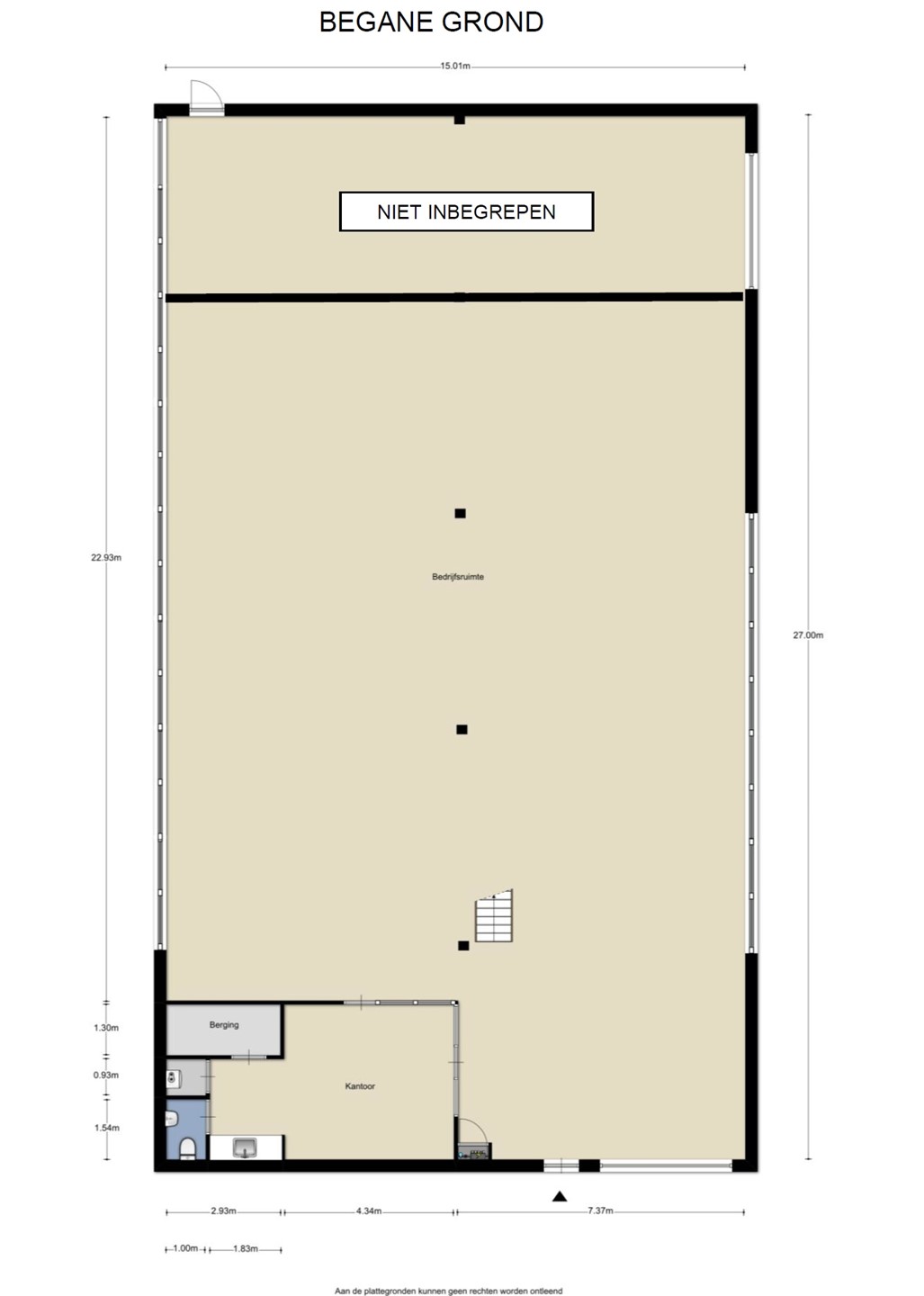
Bedrijfsruimte met meterkast, heater en een elektrische overheaddeur. Kantoor met toilet, berging en werkkast met opstelling Nefit HR cv-ketel.

BOUWWIJZE
De bedrijfshal is opgetrokken in staalskelet constructie, zadeldak met asbestvrije golfplaten gedekt. Voorgevel opgetrokken... Meer informatie
  • Kenmerken

    Alle kenmerken
    Type object Bedrijfshal
    Bouwperiode 2000
    Status Verhuurd
  • Locatie

Kenmerken

Overdracht
Referentienummer 00724
Huurprijs € 1.750,- per maand
Inrichting Niet gestoffeerd
Inrichting Niet gemeubileerd
Status Verhuurd
Aanvaarding Per donderdag 1 januari 2026
Laatste wijziging Donderdag 1 januari 2026
Bouw
Type object Bedrijfshal
Soort bouw Bestaande bouw
Bouwperiode 2000
Type dak Zadeldak
Isolatievormen Dakisolatie, Dubbel glas, Muurisolatie, Spouwmuren
Oppervlaktes en inhoud
Perceeloppervlakte 700 m²
VVO 410 m²
Kantoor oppervlakte 30 m²
Totale verhuurbare vloeroppervlakte 440 m²
Vrije hoogte 7 m.
Locatie
Ligging Aan drukke weg, Bedrijventerrein, Nabij snelweg
Lokale voorzieningen Bank op 1000 meter tot 1500 meter, Geldautomaat op 1000 meter tot 1500 meter, Recreatie op 1000 meter tot 1500 meter, Restaurant op 1000 meter tot 1500 meter, Winkel op 1000 meter tot 1500 meter, Supermarkt op 1500 meter tot 2000 meter
Bereikbaarheid Bushalte op 500 meter tot 1000 meter, Busknooppunt op 1000 meter tot 1500 meter, Afrit van de snelweg op 5000 meter of meer
Uitrusting
Aantal parkeerplaatsen 4
Uitrusting Betonvloer, Heater, Krachtstroom, Overheaddeuren
Heeft een kantoor Ja
Kadastrale gegevens
Kadastrale aanduiding BLADEL H 1789
Perceeloppervlakte 700 m²
Omvang Deel perceel
Eigendomsituatie Eigen grond
Kadastrale aanduiding
Eigendomsituatie Eigen grond

Beschrijving

Mooi vrij gelegen multifunctionele bedrijfshal, goed bereikbaar en perfect gelegen aan rondweg Bladel!

INDELING
Bedrijfsruimte met meterkast, heater en een elektrische overheaddeur. Kantoor met toilet, berging en werkkast met opstelling Nefit HR cv-ketel.

BOUWWIJZE
De bedrijfshal is opgetrokken in staalskelet constructie, zadeldak met asbestvrije golfplaten gedekt. Voorgevel opgetrokken in spouw metselwerk, overige gevels opgetrokken in metselwerk borstwering met daarboven gevelbeplating. Volledig geïsoleerd. Hardhouten kozijnen met isolerende beglazing.

OPPERVLAKTE
De bedrijfshal is groot totaal VVO circa 440 m², waarvan circa 320 m² begane grond (inclusief circa 30 m² kantoor) en 120 m² verdieping. In het getaxeerde object zijn eigen nutsvoorzieningen aanwezig, voeding elektra is 3 x 25 Amp.

BESTEMMING
Het getaxeerde perceel is bekend in bestemmingsplan Kom Bladel 2019, bestemd als ‘Bedrijf’. Toegestaan zijn bedrijven genoemd in bijlage van het bestemmingsplan (Staat van bedrijfsactiviteiten) onder de categorie 1 en 2 en ondergeschikte productie-gebonden detailhandel.

STAAT VAN ONDERHOUD
Het object verkeert in goede staat van onderhoud.

LIGGING
Op uitstekende stand gelegen op MKB bedrijvenpark “De Beemd”, aan rondweg Bladel!

ALGEMEEN
- Glasvezel internet ligt in meterkast
- Beklinkerd buitenterrein
- Voldoende parkeergelegenheid
- Pand maakt een keurige indruk

BEZICHTIGING
Neem gerust contact op voor een vrijblijvende bezichtiging, dan krijgt u pas en goede indruk van de mogelijkheden die dit pand biedt!

HUURCONDITIES
- Huurbetaling per maand vooruit
- Uitgangspunt huurtermijn is vijf jaar, kortere periode bespreekbaar
- Er wordt niet geopteerd voor een met BTW belaste verhuur
- Als zekerheidstelling wordt een bankgarantie / waarborgsom gevraagd ter grootte van 3 maanden huur
- Huurcontract conform model ROZ
- Alle onder voorbehoud goedkeuring opdrachtgever

Plattegronden

Sluiten

Recent bekeken