IMG_1094.jpg IMG_1096.jpg IMG_1098.jpg IMG_1099.jpg IMG_1102.jpg IMG_1103.jpg IMG_1105.jpg IMG_1106.jpg IMG_1107.jpg IMG_1108.jpg IMG_1109.jpg
Verhuurd

Verhuurd: Prachtige kantoorruimte met energielabel A!

€ 875,- /mnd
Adres: Kuiper 9A, 5521 DG Eersel
Type object Kantoor
Perceeloppervlakte 130 m²
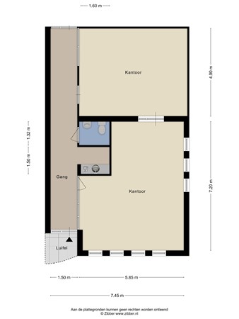
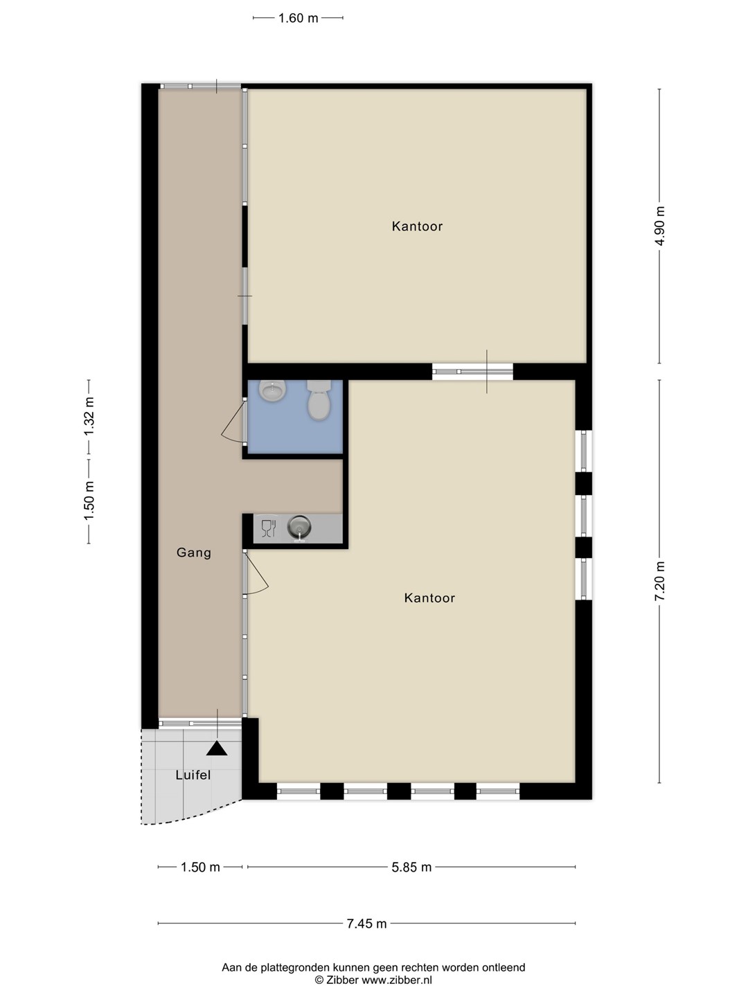
Totale VVO 90 m²
In units vanaf 90 m²
Aanvaarding Direct
Status Verhuurd

Notitie

Algemeen

Prachtige kantoor- / praktijkruimte met energielabel A perfect gelegen op circa 1 km van de afslag autosnelweg A67!

Op zoek naar een visitekaartje voor uw bedrijf? Deze zelfstandige kantoorunit met eigen entree ligt op de begane grond en heeft een moderne uitstraling. Er zijn twee eigen parkeerplaatsen aan de voorzijde, extra parkeerplaatsen in overleg. Ook opslagruimte kan erbij gehuurd wo... Meer informatie
  • Kenmerken

    Alle kenmerken
    Type object Kantoor
    Bouwperiode 1990
    Status Verhuurd
  • Locatie

Kenmerken

Overdracht
Referentienummer 00716
Huurprijs € 875,- per maand
Inrichting Ja
Inrichting Gestoffeerd
Status Verhuurd
Aanvaarding Direct
Laatste wijziging Woensdag 17 december 2025
Bouw
Type object Kantoor
Soort bouw Bestaande bouw
Bouwperiode 1990
Oppervlaktes en inhoud
Perceeloppervlakte 130 m²
VVO 90 m²
In units vanaf 90 m²
Indeling
Aantal bouwlagen 1
Locatie
Ligging Bedrijventerrein, Nabij snelweg
Lokale voorzieningen Geldautomaat op 500 meter tot 1000 meter, Recreatie binnen 500 meter, Restaurant op 500 meter tot 1000 meter, Winkel op 500 meter tot 1000 meter, Supermarkt op 500 meter tot 1000 meter
Bereikbaarheid Bushalte binnen 500 meter, Afrit van de snelweg op 1000 meter tot 1500 meter
Energieverbruik
Energielabel A
Energie-index 0,99
Uitrusting
Aantal parkeerplaatsen 2
Kadastrale gegevens
Kadastrale aanduiding Eersel H 767
Perceeloppervlakte 130 m²
Omvang Deel perceel
Eigendomsituatie Eigen grond

Beschrijving

Prachtige kantoor- / praktijkruimte met energielabel A perfect gelegen op circa 1 km van de afslag autosnelweg A67!

Op zoek naar een visitekaartje voor uw bedrijf? Deze zelfstandige kantoorunit met eigen entree ligt op de begane grond en heeft een moderne uitstraling. Er zijn twee eigen parkeerplaatsen aan de voorzijde, extra parkeerplaatsen in overleg. Ook opslagruimte kan erbij gehuurd worden in overleg!

Highlights van het pand:
- Zelfstandig afsluitbaar met eigen ingang, eigen toilet en eigen keuken
- Vloer,- muur- en dakisolatie toegepast
- Energielabel A!
- Pand maakt een keurige indruk en heeft een moderne uitstraling
- Verhuurder kan kosteloos wandbekleding leveren om de ruimtes naar wens af te werken
- Opslagruimte kan erbij gehuurd worden in overleg!

Energie en internet:
- Voorschot elektra nader te bepalen
- Eigen gasmeter
- WiFi in het hele pand waar huurder desgewenst gratis gebruik van kan maken
- Glasvezel aanwezig, eventueel abonnement zelf af te sluiten

Huurcondities:
- Huurbetaling per maand vooruit
- Huurperiode vanaf 2 jaar
- Er wordt geopteerd voor een met BTW belaste verhuur
- Als zekerheidstelling wordt een bankgarantie / waarborgsom gevraagd ter grootte van 3 maanden huur exclusief BTW
- Huurcontract conform laatste model ROZ
- Alles onder voorbehoud goedkeuring opdrachtgever

Plattegronden

Sluiten

Recent bekeken