19a - 1.JPG 19a - 3.JPG 19a - 4 entree 19a - 4 entree-desktop-o435le6 19a - 5 toilet 19a - 6 trap naar verdieping 19a - 7 begane grond 19a - 8 begane grond 19a - 9 verdieping 19a - 10 verdieping 19a - 11 verdieping 19a - 12 verdieping
Nieuw in verhuur

Te huur: Zelfstandige bedrijfshal met moderne uitstraling!

€ 1.025,- /mnd
Adres: Koningshoek 19A, 5094 CD Lage Mierde
Type object Bedrijfshal
Perceeloppervlakte 183 m²
Bruto vloeroppervlakte 308 m²
Totale VVO 308 m²
In units vanaf 303 m²
Aanvaarding Direct
Status Nieuw in verhuur

Notitie

Algemeen

Prachtige bedrijfshal met moderne uitstraling, gelegen op bedrijvenpark “Koningshoek”!

De hal is geschikt voor opslag en/of montagewerkzaamheden.
Geen las-, metaal-, of productiewerkzaamheden.

Indien nodig mag huurder in overleg met verhuurder een kantoorruimte realiseren op de verdieping.

Oppervlakte:
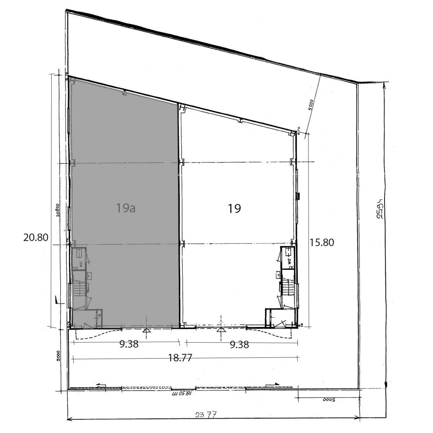
Ca. 183 m² begane grond
Ca. 120 m² verdieping (betonvloer)

Algemeen:
- Repre... Meer informatie
  • Kenmerken

    Alle kenmerken
    Type object Bedrijfshal
    Bouwperiode 2001
    Status Nieuw in verhuur
  • Locatie

Kenmerken

Overdracht
Referentienummer 00730
Prijs € 1.025,- per maand
Borg € 3.075,-
Inrichting Niet gestoffeerd
Inrichting Niet gemeubileerd
Status Nieuw in verhuur
Aanvaarding Direct
Bouw
Type object Bedrijfshal
Soort bouw Bestaande bouw
Bouwperiode 2001
Dakbedekking Bitumen
Type dak Platdak
Isolatievormen Dakisolatie, Dubbel glas, Muurisolatie, Vloerisolatie
Oppervlaktes en inhoud
Perceeloppervlakte 183 m²
Bruto vloeroppervlakte 308 m²
VVO 303 m²
In units vanaf 303 m²
Locatie
Ligging Bedrijventerrein
Lokale voorzieningen Geldautomaat binnen 500 meter, Recreatie op 500 meter tot 1000 meter, Restaurant binnen 500 meter, Winkel binnen 500 meter
Bereikbaarheid Bushalte binnen 500 meter
Uitrusting
Aantal parkeerplaatsen 2
Uitrusting Betonvloer, Heater, Krachtstroom, Overheaddeuren, Toilet
Kadastrale gegevens
Kadastrale aanduiding Hooge en Lage Mierde H 1768
Perceeloppervlakte 183 m²
Omvang Deel perceel
Eigendomsituatie Eigen grond

Beschrijving

Prachtige bedrijfshal met moderne uitstraling, gelegen op bedrijvenpark “Koningshoek”!

De hal is geschikt voor opslag en/of montagewerkzaamheden.
Geen las-, metaal-, of productiewerkzaamheden.

Indien nodig mag huurder in overleg met verhuurder een kantoorruimte realiseren op de verdieping.

Oppervlakte:
Ca. 183 m² begane grond
Ca. 120 m² verdieping (betonvloer)

Algemeen:
- Representatieve bedrijfshal
- Zelfstandige hal met eigen adres
- Goed geïsoleerd en moderne uitstraling!
- Uitgevoerd met hoge ramen (= inbraakveilig)
- Rondom verlicht
- Verhard buitenterrein aanwezig omheind met fraai hekwerk
- Uitgevoerd met overheaddeuren en betegeld toilet
- Vloer-, muur- en dakisolatie toegepast
- Internetaansluiting aanwezig
- Ideale ruimte voor kleine ondernemer!

Huurcondities:
- Huurbetaling per maand vooruit
- Huurtermijn is minimaal twee jaar
- Er wordt geopteerd voor een met BTW belaste verhuur
- Als zekerheidstelling wordt een bankgarantie/waarborgsom gevraagd ter grootte van 3 maanden huur exclusief BTW
- Huurcontract conform model ROZ
- Alles onder voorbehoud goedkeuring opdrachtgever

Plattegronden

Sluiten

Recent bekeken